Wyniki Konkursu


02.09.2025

Opublikowano informację o wynikach rozstrzygnięcia Konkursu.

Oficjalna Informacja o wynikach rozstrzygnięcia Konkursu Szkoła Wilanów


I NAGRODA
Nagroda pieniężna w wysokości 50 000,00 zł brutto oraz w Nagroda w postaci zaproszenia do negocjacji w trybie zamówienia z wolnej ręki na wykonanie usługi na podstawie wybranej Pracy konkursowej zostaje przyznana:
Pracy konkursowej o Numerze identyfikacyjnym Uczestnika 031
(Numer nadany przez Sekretarza Konkursu: 002)

Uczestnicy Konkursu wspólnie biorący udział w Konkursie

  1. Studio Widoki Łukasz Stępnik
    ul. Krasińskiego 33b/41
    01-784 Warszawa
  2. Mak studio Łukasz Krzesiak
    ul. Puszczyka 12/39
    02-785 Warszawa
  3. 2PM Piotr Musiałowski
    ul. Sielecka 48/37
    00-738 Warszawa

Skład zespołu autorskiego:
Łukasz Stępnik, Milena Trzcińska, Łukasz Krzesiak, Piotr Musiałowski, Dominika Bednarek, Łukasz Kowalski, Piotr Pachowski, Tomasz Bartkowiak, Krzysztof Demidziuk, Michał Lenczewski.

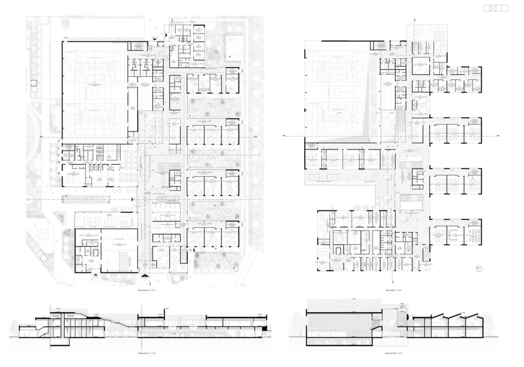
Informacja o Pracy konkursowej 031
Praca spełnia zasadnicze wymogi konkursu. Zaproponowano podział na cztery bryły połączone „cokołem” o charakterystycznym kształcie, wynikającym z lokalizacji na jego dachu bieżni. Wejście główne do szkoły, MDK i poradni pedagogicznej od ulicy Sytej i Placu Vogla. Drugie wejście do szkoły i części dydaktycznej od ulicy Łokciowej. Miejsca postojowe dla samochodów osobowych zlokalizowane pod salą sportową, z wjazdem od ulicy Łokciowej. Utworzono zieloną strefę buforową od strony zabudowy jedno- i wielorodzinnej. Zadbano o dobre doświetlenie stref rekreacyjnych w części dydaktycznej.

Uzasadnienie przyznania I Nagrody Pracy konkursowej 031
Praca w najlepszy sposób spełnia oczekiwania Zamawiającego pod względem rozwiązań urbanistycznych, zagospodarowania terenu, jak i funkcji oraz wyrazu architektonicznego obiektu. Atutem pracy jest bardzo czytelny układ brył i podział funkcji. Umożliwiono równorzędny dostęp do projektowanej szkoły zarówno od ulicy Sytej, jak i Łokciowej. Praca wyróżnia się wielopoziomową aranżacją terenu inwestycji, dobrze wpisuje się w lokalizację i kontekst Zawad. Cechuje się wyjątkowym ukształtowaniem bryły szkoły, a bieżnia i biblioteka są elementami ikonicznymi tej pracy. Na uwagę zasługuje szeroka oferta atrakcyjnie ukształtowanych terenów zielonych i zewnętrznych stref rekreacyjnych, jak na przykład zadaszonego zewnętrznego boiska zlokalizowanego na deku. Dzięki bezpośredniemu do nich dostępowi oraz różnorodności zaspokojono potrzeby wszystkich grup użytkowników. Prawidłowo wyeliminowano punkty przecinania się ruchu pieszego i rowerowego z ruchem samochodowym na terenie działki szkolnej. Dobrze został rozdzielony dojazd techniczny do szkoły od strefy ruchu pieszego i rowerowego

Praca konkursowa w pierwszym głosowaniu nad wyborem Prac do dalszej oceny uzyskała w ramach kryteriów oceny liczbę głosów (punktów) 11 (jedenaście) na 11 głosujących Sędziów w związku z czym przeszła do dalszej oceny.
Praca konkursowa w drugim głosowaniu nad wyborem Prac do przyznania I, II i III Nagrody uzyskała w ramach kryteriów oceny liczbę głosów (punktów) 11 (jedenaście) na 11 głosujących Sędziów w związku z czym przeszła do dalszej oceny.
Praca konkursowa w głosowaniu nad przyznaniem I Nagrody pieniężnej uzyskała w ramach kryteriów oceny liczbę głosów (punktów) 10 (dziesięć) na 11 głosujących Sędziów w związku z czym Praca została pozrzynana INagroda. Głosowanie dotyczyło trzech Prac o Numerach identyfikacyjnym Uczestnika 023, 025 i 031.
Zgodnie z zapisami Regulaminu konkursu Pracy konkursowej, która otrzymała największą ilość głosów (punktów) i uzyskała I Nagrodę pieniężną zostaje także przyznana Nagroda w postaci zaproszenia do negocjacji w trybie zamówienia z wolnej ręki na wykonanie usługi na podstawie wybranej Pracy konkursowej.

Uwagi pokonkursowe do Pracy konkursowej 031

  • Należy umożliwić bezpośredni dostęp na dek pierwszego piętra od ulicy Łokciowej.;
  • Należy przeanalizować zasady dostępności deku również dla użytkownika zewnętrznego poza godzinami pracy szkoły;
  • Należy w bezpośrednim sąsiedztwie otwartych schodów zlokalizować windę jako równoważne ze schodami powiązanie pomiędzy kondygnacjami.
  • Należy przeanalizować organizację wejścia głównego do szkoły, z naciskiem na poszerzenie przedpola przed wejściem.
  • Należy rozważyć możliwość zwiększenia stref rekreacji o różnym charakterze, w tym stref wyciszenia.
  • Należy przeanalizować zastosowane materiały elewacyjne pod kątem aspektów eksploatacyjnych i ekonomicznych.
  • Należy przewidzieć doprojektowanie toalet zewnętrznych przy placach zabaw klas 1-3.

PREZENTACJA I NAGRODA
Praca konkursowa 031

CZĘŚĆ OPISOWA Praca konkursowa 031

Opracowanie studialne do Pracy konkursowej 031


II NAGRODA
Nagroda pieniężna w wysokości 40 000 zł brutto zostaje przyznana:
Pracy konkursowej o Numerze identyfikacyjnym Uczestnika 023
(Numer nadany przez Sekretarza Konkursu: 004)

Uczestnik Konkursu samodzielnie biorący udział w Konkursie:
WWAA SPÓŁKA Z OGRANICZONĄ ODPOWIEDZIALNOŚCIĄ
ul. Mińska, nr 25, lok. BUD. 73
03-808 Warszawa

Skład zespołu autorskiego:
Natalia Paszkowska, Marcin Mostafa, Karol Krawczyk, Katarzyna Kłaczek, Katarzyna Buchholz, Yelizaveta Prystromava, Ryszard Rychlicki, Wiktor Kowalski, Jan Cieśla.

Informacja o Pracy konkursowej 023
Praca spełnia zasadnicze wymogi konkursu. Zaproponowano zabudowę podzieloną na dwie bryły, połączoną daszkiem i łącznikiem na poziomie +1. Daje to możliwość wglądu na teren zielony w głębi działki, również od strony placu Vogla. Od strony południowej zlokalizowano szkołę wraz z poradnią i oddziałami nauczania specjalnego, od strony północnej MDK i halę sportową. Boisko ulokowane jest na garażu (garaż na -0,5), równolegle do tyłu centrum handlowego. Zapewniono równorzędny i bezpieczny dostęp dla uczniów do wejścia do szkoły zarówno od ulicy Sytej, jak i Łokciowej. Wygospodarowano duży rekreacyjny teren zielony w centrum działki, z zachowaniem istniejącej górki.

Uzasadnienie przyznania II Nagrody Pracy konkursowej 023
Praca wyróżnia się zaproponowanym połączeniem ulicy Sytej i Łokciowej, uzyskanym przez podział brył i zagospodarowanie terenu. Atutem tej pracy jest lokalizacja funkcji dostępnych dla wszystkich mieszkańców z „Nowego Placu Vogla” i „skweru aktywności”. Zapewniono dobre doświetlenie stref rekreacyjnych w części dydaktycznej.
Praca konkursowa w pierwszym głosowaniu nad wyborem Prac do dalszej oceny uzyskała w ramach kryteriów oceny liczbę głosów (punktów) 10 (dziesięć) na 11 głosujących Sędziów w związku z czym przeszła do dalszej oceny.
Praca konkursowa w drugim głosowaniu nad wyborem Prac do przyznania I, II i III Nagrody uzyskała w ramach kryteriów oceny liczbę głosów (punktów) 10 (dziesięć) na 11 głosujących Sędziów w związku z czym przeszła do dalszej oceny.
Praca konkursowa w głosowaniu nad przyznaniem I Nagrody pieniężnej uzyskała w ramach kryteriów oceny liczbę głosów (punktów) 1 (jeden) na 11 głosujących Sędziów w związku z czym nie otrzymała I Nagrody. Głosowanie dotyczyło trzech Prac o Numerach identyfikacyjnym Uczestnika 023, 025 i 031.
Praca konkursowa w głosowaniu nad przyznaniem II lub III Nagrody pieniężnej uzyskała w ramach kryteriów oceny liczbę głosów (punktów) 9 (dziewięć) na 11 głosujących Sędziów w związku z czym Pracy została pozrzynana II Nagroda. Głosowanie dotyczyło dwóch Prac o Numerach identyfikacyjnym Uczestnika 023 i 025.

Uwagi pokonkursowe do Pracy konkursowej 023

  • Należy rozważyć możliwość rozdzielenia wjazdu dla rowerów i samochodów na parking.
  • Należy poszerzyć łącznik na pierwszym piętrze.
  • Należy przeanalizować ogrodzenia stref o różnym poziomie dostępności.
  • Należy bardziej wyeksponować wejście wewnętrze do biblioteki.
  • Należy w bezpośrednim sąsiedztwie otwartych schodów zlokalizować windę jako równoważne ze schodami powiązanie pomiędzy kondygnacjami.
  • Należy zaprojektować pokoje nauczycielskie w pobliżu oddziałów z którymi pokoje są związane funkcjonalnie.
  • Należy przeanalizować możliwość skrócenia drogi kołowej od strony ulicy Sytej.
  • Należy przewidzieć doprojektowanie toalet zewnętrznych przy placach zabaw klas 1-3.
  • Należy przeanalizować kształt i zakres zadaszeń

PREZENTACJA II NAGRODA
Praca konkursowa 023

CZĘŚĆ OPISOWA Praca konkursowa 023

Opracowanie studialne do Pracy konkursowej 023


III NAGRODA
Nagroda pieniężna w wysokości 30 000 zł brutto zostaje przyznana:
Pracy konkursowej o Numerze identyfikacyjnym Uczestnika 025
(Numer nadany przez Sekretarza Konkursu: 003)

Uczestnik Konkursu samodzielnie biorący udział w Konkursie:
Grupa 5 Architekci Sp. z o.o.
ul. Wejnerta 16A
02-619 Warszawa

Skład zespołu autorskiego:
Michał Leszczyński, Krzysztof Mycielski, Roman Dziedziejko, Rafał Zelent, Rafał Grzelewski, Mateusz Gawron, Barbara Szol, Milena Szczęsna, Jeremi Dziedziejko, Maciej Kolek, Paulina Cieśla, Justyna Dziedziejko, Magdalena Wnęk, Maria Grzejda.

Informacja o Pracy konkursowej 025
Praca spełnia wymogi formalne. Hasłem pracy jest „Osada”- zabudowa działki to rozczłonkowane bryły tworzący układ „organiczny”. Wejście do głównych funkcji szkoły jest od strony Placu Vogla, istnieje dostęp pieszy dla uczniów od ulicy Łokciowej. W centrum założenia wygospodarowano wspólny teren zielony z zachowaniem istniejącej górki. Zaproponowano ulicę jezdną między ulicą Sytą a Łokciową.

Uzasadnienie przyznania II Nagrody Pracy konkursowej 025
Uwagę sądu konkursowego zwróciła wrażliwość kształtowania przestrzeni w oparciu o potrzeby dzieci oraz atrakcyjność terenu zielonego w środku założenia. Wątpliwość Sądu Konkursowego wzbudziła znaczna odległość (i dostępność) poradni i szkolnych pomieszczeń terapii od oddziałów nauczania specjalnego.
Praca konkursowa w pierwszym głosowaniu nad wyborem Prac do dalszej oceny uzyskała w ramach kryteriów oceny liczbę głosów (punktów) 6 (sześć) na 11 głosujących Sędziów w związku z czym przeszła do dalszej oceny.
Praca konkursowa w drugim głosowaniu nad wyborem Prac do przyznania I, II i III Nagrody uzyskała w ramach kryteriów oceny liczbę głosów (punktów) 7 (siedem) na 11 głosujących Sędziów w związku z czym przeszła do dalszej oceny.
Praca konkursowa w głosowaniu nad przyznaniem I Nagrody pieniężnej uzyskała w ramach kryteriów oceny liczbę głosów (punktów) 0 (zero) na 11 głosujących Sędziów w związku z czym nie otrzymała I Nagrody. Głosowanie dotyczyło trzech Prac o Numerach identyfikacyjnym Uczestnika 023, 025 i 031.
Praca konkursowa w głosowaniu nad przyznaniem II lub III Nagrody pieniężnej uzyskała w ramach kryteriów oceny liczbę głosów (punktów) 2 (dwa) na 11 głosujących Sędziów w związku z czym Pracy została pozrzynana III Nagroda. Głosowanie dotyczyło dwóch Prac o Numerach identyfikacyjnym Uczestnika 023 i 025.

PREZENTACJA III NAGRODA
Praca konkursowa 025

CZĘŚĆ OPISOWA Praca konkursowa 025

Opracowanie studialne do Pracy konkursowej 025


WYRÓŻNIENIE
Nagroda pieniężna w formie wyróżnienia w wysokości 15 000 zł netto zostaje przyznana:
Pracy konkursowej o Numerze identyfikacyjnym Uczestnika 001
(Numer nadany przez Sekretarza Konkursu: 008)

Uczestnik Konkursu samodzielnie biorący udział w Konkursie:
MAMGUSTA Architekci Sp. z o.o.
ul. Słowicza 45
02-170 Warszawa

Skład zespołu autorskiego:
Sebastian Tabędzki, Łukasz Lautsch, Małgorzata Grzybowska, Adam Krupa, Mateusz Gortat.

Informacja o Pracy konkursowej 001
Autorzy proponują stworzenie czterech odrębnych brył połączonych częścią parterową z dziedzińcem, zielonym dachem i strefą rekreacji na dachu, oraz półotwartymi dziedzińcami od strony południowej. Wejście główne do budynku jest zlokalizowane od strony ulicy Sytej, natomiast kompleks sportowy posiada oddzielne wejście od strony ulicy Łokciowej.

Uzasadnienie przyznania wyróżnienia Pracy konkursowej 001
Praca otrzymuje wyróżnienie ze względu na dobre rozwiązanie urbanistyczne – ukształtowanie strefy wejścia przed budynkiem, która w sposób płynny przekształca się w atrakcyjny hol wejściowy. O ile autorzy poświęcili dużo uwagi na rozwiązania urbanistyczne i budynkowe o tyle nie wykazali przekonujących rozwiązań dedykowanych uczniom. Wątpliwości budzi m.in. relatywnie duże oddalenie od wejścia zespołu szatni, niedoświetlenie rekreacji w skrzydłach szkolnych oraz odległość świetlic od wejścia (jedna z nich na kondygnacji 2.
Praca konkursowa w drugim głosowaniu nad wyborem Prac do przyznania I, II i III Nagrody uzyskała w ramach kryteriów oceny liczbę głosów (punktów) 10 (dziesięć) na 11 głosujących Sędziów w związku z czym przeszła do dalszej oceny.
Praca konkursowa w pierwszym głosowaniu nad wyborem Prac do dalszej oceny uzyskała w ramach kryteriów oceny liczbę głosów (punktów) 8 (osiem) na 11 głosujących Sędziów w związku z czym przeszła do dalszej oceny.
Praca konkursowa w drugim głosowaniu nad wyborem Prac do przyznania I, II i III Nagrody uzyskała w ramach kryteriów oceny liczbę głosów (punktów) 2 (dwa) na 11 głosujących Sędziów w związku z czym nie przeszła do dalszej oceny.

    PREZENTACJA
    Praca konkursowa 001

    CZĘŚĆ OPISOWA Praca konkursowa 001

    Opracowanie studialne do Pracy konkursowej 001


    WYRÓŻNIENIE
    Nagroda pieniężna w formie wyróżnienia w wysokości 15 000 zł netto zostaje przyznana:
    Pracy konkursowej o Numerze identyfikacyjnym Uczestnika 007
    (Numer nadany przez Sekretarza Konkursu: 006)

    Uczestnicy Konkursu wspólnie biorący udział w Konkursie:

    1. Pracownia Architektoniczna 1997 Sp. z o.o.
      ul. Strusia 10
      60-711 Poznań
    2. Gąska Wojcieszak Pracownia Architektoniczna Sp. z o.o.
      ul. Stary Rynek 95/96
      61-773 Poznań

    Skład zespołu autorskiego:
    Krzysztof Frąckowiak, Rafał Hodyra, Aleksandra Kornecka, Magdalena Lelonkiewicz, Łukasz Gąska, Mirosław Wojcieszak, Kornel Kuzański, Katarzyna Woźniak, Teresa Bączkiewicz.

    Informacja o Pracy konkursowej 007
    Praca charakteryzuje się zwartą bryłą, z głównym wejściem od ulicy Sytej. Od strony południowej zaproponowano klasy szkolne w układzie grzebieniowym. Od strony północnej ulokowano MDK i kompleks sportowy. Na tle innych prac autorzy zaproponowali największą integrację budynku MDK z resztą zabudowy.

    Uzasadnienie przyznania wyróżnienia Pracy konkursowej 007
    Zaproponowany został zasadniczo zwarty i efektywny układ komunikacyjny, przestrzenie rekreacyjne wewnątrz budynku są doświetlone. Dużym atutem pracy jest również rozwiązanie zewnętrznych przestrzeni wspólnych na tarasach. Wątpliwości sądu budzi relatywnie mało przestrzeni zielonej dla uczniów, w szczególności w wąskim dziedzińcu zrealizowanym od północy. Deklaracja stworzenia lokalnego centrum życia społecznego nie odzwierciedla się w rozwiązaniach projektowych np. wejście do MDK jest mało widoczne.
    Praca konkursowa w pierwszym głosowaniu nad wyborem Prac do dalszej oceny uzyskała w ramach kryteriów oceny liczbę głosów (punktów) 8 (osiem) na 11 głosujących Sędziów w związku z czym przeszła do dalszej oceny.
    Praca konkursowa w drugim głosowaniu nad wyborem Prac do przyznania I, II i III Nagrody uzyskała w ramach kryteriów oceny liczbę głosów (punktów) 0 (zero) na 11 głosujących Sędziów w związku z czym nie przeszła do dalszej oceny.

    PREZENTACJA
    Praca konkursowa 007

    CZĘŚĆ OPISOWA Praca konkursowa 007

    Opracowanie studialne do Pracy konkursowej 007


    WYRÓŻNIENIE
    Nagroda pieniężna w formie wyróżnienia w wysokości 15 000 zł netto zostaje przyznana:
    Pracy konkursowej o Numerze identyfikacyjnym Uczestnika 010
    (Numer nadany przez Sekretarza Konkursu: 007)

    Uczestnik Konkursu samodzielnie biorący udział w Konkursie:
    Jems Architekci Sp. z o.o.
    ul. Gagarina 28a
    00-754 Warszawa

    Skład zespołu autorskiego:
    Tomasz Napieralski, Marcin Sadowski, Beata Momot, Sandra Namyślak, Mateusz Wojcieszek, Karolina Mrówka, Piotr Kliński, Piotr Pachowski, Bartłomiej Siekierski.

    Informacja o Pracy konkursowej 010
    W warstwie ideowej praca proponuję stworzenie „świata idealnego”, małego Miasteczka Dzieci, które zostaje przetłumaczone na język małej urbanistyki wijących się między bryłami pomieszczeń uliczek i zakamarków. Autorzy podkreślają nawiązanie do skali i różnorodności zabudowy Zawad, co ma odzwierciedlenie w różnorodnym ukształtowaniu brył.

    Uzasadnienie przyznania wyróżnienia Pracy konkursowej 010
    Budynek posiada bardzo dużo uroku różnorodnych przestrzeni wewnętrznych, które zostały docenione przez sąd konkursowy. Autorzy skupili się na wnętrzu, jednak bez wystarczającej uwagi dla przestrzeni zewnętrznych, w których uczniowie, szczególnie młodsze grupy wiekowe, spędzają dużo czasu. Proponowany budynek jest bardzo duży, co rodziło obawy o przyszłe koszty utrzymania obiektu. Wątpliwości budzi zasadność umieszczenia strefy MDK od strony ulicy Łokciowej.

    Praca konkursowa w pierwszym głosowaniu nad wyborem Prac do dalszej oceny uzyskała w ramach kryteriów oceny liczbę głosów (punktów) 2 (dwa) na 11 głosujących Sędziów w związku z czym nie przeszła do dalszej oceny.

    PREZENTACJA
    Praca konkursowa 010

    CZĘŚĆ OPISOWA Praca konkursowa 010

    Opracowanie studialne do Pracy konkursowej 010


    WYRÓŻNIENIE
    Nagroda pieniężna w formie wyróżnienia w wysokości 15 000 zł netto zostaje przyznana:
    Pracy konkursowej o Numerze identyfikacyjnym Uczestnika 020
    (Numer nadany przez Sekretarza Konkursu: 005)

    Uczestnik Konkursu samodzielnie biorący udział w Konkursie:
    JSK Architekci Sp. Z o.o.
    ul. Żwirki i Wigury 18
    02-092 Warszawa

    Skład zespołu autorskiego:
    Zbigniew Pszczulny, Mariusz Rutz, Kinga Batte, Julia Pałęga, Jakub Pieńkowski, Mikołaj Twardowski, Anna Pliszka.

    Informacja o Pracy konkursowej 020
    Praca w warstwie ideowej proponuje odczytanie kodu tożsamości lokalnej Dzielnicy Wilanów a w warstwie formalnej połączenie skali zabudowy miejskiej z cechami zabudowy podmiejskiej. Cechą charakterystyczną pracy jest plac wejściowy do szkoły zlokalizowany za, wolnostojącym budynkiem MDK, zlokalizowanym od ulicy Sytej oraz grzebieniowy układ części dydaktycznej od strony ulicy Łokciowej.

    Uzasadnienie przyznania wyróżnienia Pracy konkursowej 020
    Projekt w sposób wzorcowy rozwiązuje detale elementów zagospodarowania terenu i wyposażenia wnętrza. Należy docenić również szczególne zwrócenie uwagi na różne grupy uczniów ze specjalnymi potrzebami i zaprojektowanie rozwiązań pod te potrzeby. Mimo odczytania intencji autorów, w ocenie sądu konkursowego plac wejściowy pozostanie urbanistycznie wyizolowany i bez efektywnych powiązań z resztą tkanki miejskiej. Autorzy nie zaproponowali przekonującej przestrzeni zielonej, z której mogliby korzystać wszyscy uczniowie.

    Praca konkursowa w pierwszym głosowaniu nad wyborem Prac do dalszej oceny uzyskała w ramach kryteriów oceny liczbę głosów (punktów) 3 (trzy) na 11 głosujących Sędziów w związku z czym przeszła do dalszej oceny.
    Praca konkursowa w drugim głosowaniu nad wyborem Prac do przyznania I, II i III Nagrody uzyskała w ramach kryteriów oceny liczbę głosów (punktów) 0 (zero) na 11 głosujących Sędziów w związku z czym nie przeszła do dalszej oceny.

    PREZENTACJA
    Praca konkursowa 020

    CZĘŚĆ OPISOWA Praca konkursowa 020

    Opracowanie studialne do Pracy konkursowej 020


    WYRÓŻNIENIE
    Nagroda pieniężna w formie wyróżnienia w wysokości 15 000 zł netto zostaje przyznana:
    Pracy konkursowej o Numerze identyfikacyjnym Uczestnika 048
    (Numer nadany przez Sekretarza Konkursu: 001)

    Uczestnik Konkursu samodzielnie biorący udział w Konkursie:
    Małgorzata Pirek – FLOWTEKTURA Pracownia Projektowa Sp. z o.o.
    ul. Józefa 25 lok. 16
    92-235 Łódź

    Skład zespołu autorskiego:
    Małgorzata Pirek, Agnieszka Marciniak, Piotr Borzęcki, Małgorzata Świdrak, Paulina Soból-Hara, Anna Hejduk.

    Informacja o Pracy konkursowej 048
    Praca proponuje podział zabudowy na dwie zasadnicze części: dwukondygnacyjną zabudowę części dydaktycznej oraz MDK przykrytą dachami dwuspadowymi krytymi dachówką oraz prostopadłościenną zabudowę części sportowej. Elementem charakterystycznym założenia jest amfiteatr ulokowany w sąsiedztwie pl. Vogla.

    Uzasadnienie przyznania wyróżnienia Pracy konkursowej 048
    Zaletą pracy jest stworzenie atrakcyjnego wejścia od strony ulicy Łokciowej z półotwartym dziedzińcem zorganizowanym wokół istniejącego drzewa, które płynnie przechodzi w hol, do którego można wejść również od strony ulicy Sytej. Mankamentem pracy jest m.in. ukształtowanie amfiteatru utrudniającego dostęp od ulicy Sytej, oddalenie MDK od głównego wejścia na teren, ciasny układ korytarzowy w części dydaktycznej. Wątpliwości budzi prawidłowość podanego wskaźnika powierzchni biologicznie czynnej w zgodności z ustaleniem obowiązującego planu mpzp. Minusem pracy są rozwiązania komunikacyjnej, które nie sprzyjają bezpiecznemu dotarciu do szkoły przez dzieci.

    Praca konkursowa w pierwszym głosowaniu nad wyborem Prac do dalszej oceny uzyskała w ramach kryteriów oceny liczbę głosów (punktów) 1 (jeden) na 11 głosujących Sędziów w związku z czym nie przeszła do dalszej oceny.

    PREZENTACJA
    Praca konkursowa 048

    CZĘŚĆ OPISOWA Praca konkursowa 048

    Opracowanie studialne do Pracy konkursowej 048